Toscolano Maderno - Nestled in the peaceful hills of Toscolano Maderno, just a short distance from the hamlet of Sanico, we offer for sale a unique property for its location, space, and potential. An ideal retreat for those seeking independence, privacy, and an authentic connection with nature.
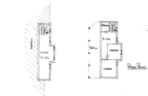
The main house, already habitable and arranged on two levels, features a stunning lake view from every window and a warm, welcoming atmosphere. On the ground floor, the living area consists of a lounge with fireplace, perfect for family evenings, a functional kitchen, and a practical pantry. The upper floor hosts the sleeping area with a double bedroom, a single bedroom, and a bathroom with window. At the back, a large covered porch provides additional outdoor living space for every season.
Adding further appeal to this proposal, not far from the main house there is a second building of about 75 sqm, currently in brickwork, which can be transformed into a comfortable guesthouse, an independent studio, or a small dwelling for visitors.
All of this is set within approximately 85,000 sqm of private land, mostly woodland, ensuring total privacy, tranquility, and a natural setting of rare beauty. Here, each day is marked by the silence of nature, the greenery surrounding the property, and the breathtaking view of Lake Garda.
A timeless place, where nature meets the lake view: the perfect setting for those who dream of a home capable of offering authentic emotions and unforgettable moments.
Or leave your details and we will contact you.
Annemieke Kneppers
Tel.: +39.349.1456814
Email: annemieke.kneppers@gardalive.com

Toscolano Maderno is located on the Brescia side of Lake Garda and is about 40 km from Milan. Consisting of twelve hamlets; Maderno, Toscolano, Bornico, Cecina, Folino, Gaino, Maclino, Pulciano, Roina, Sanico, Vigole and Stina.
Toscolano and Maderno were initially two separate communities, but later, in 1928, they were united under a single administration that extends as far as to include the Regional Park of the Alto Garda Bresciano that also includes Mount Pizzoccolo.
How to purchase property in Italy
The experience and the reliability of the team of Gardalive certainly knows how to guide and assist you during the entire process to realize your dream.
Sell your property on Lake Garda
Rely on our expertise to market your property. Our experienced team is ready to advise and help you.
Highways
A22 Brennero - Modena
Exit Rovereto sud (TN) for Lake Garda north
Exit Affi (VR) for Lake Garda south
A4 Serenissima Milano - Venezia
Exit Brescia est
Exit Sirmione (BS)
Office Salò:
Piazza Sergio Bresciani, 16, 25087 Salò (BS)
Tel.: + 39 0365 520 153
E-mail: salo@gardalive.com
Office Toscolano Maderno:
Via Statale, 28, 25088 Toscolano Maderno (BS)
Tel.: +39 0365 641 819
E-mail: altogarda@gardalive.com
Office Manerba:
Via Vittorio Gassman 1/B, 25080
Manerba del Garda (BS)
Tel.: +39 0365 55 10 61
E-mail: valtenesi@gardalive.com
Office Sirmione:
Via Brescia, 10/14, 25019 Sirmione (BS)
Tel.: +39 030 91 96 395
E-mail: sirmione@gardalive.com
As per Article 13 of Italian Legislative Decree No. 196 of 30 June 2003, "Regulations on Personal Data Protection", Adamas S.r.l. Tecnocasa partner, as the "Owner" of data protection, informs you that the personal data provided and obtained (i) during the Запрос for information for the purposes of the services offered by the company (ii) when browsing the website through the so-called system logs, will be handled for the following purposes:
1) Purposes strictly connected and/or required to managing your Запрос or obtained through the website or by email or any other communication device;
2) Purposes related to requirements stated by laws, regulations and EU standards as well as disposals given by authorised bodies or security and control bodies;
3) Operational purposes for activities carried out by Adamas S.r.l. Tecnocasa partner including but not limited to: survey of customers satisfaction rating relevant to the quality of services supplied, either carried out directly or through specialised companies by means of personal or telephone interviews, questionnaires, etc.; newsletters and promotional documentation about the services offered by Adamas S.r.l. and/or companies belonging to the group, market researches, economical and statistical analyses.
According to the above mentioned purposes, the handling of personal data is carried out through manual or IT tools with methods strictly connected with the purposes and adopting suitable measures for guaranteeing the security and confidentiality of the data. The handling of personal data can be carried out with the above mentioned methods and modalities by Adamas S.r.l., by third parties supplying services of data processing or carrying out complementary activity or activities required for carrying out services and operations you required. Moreover, when it is necessary in order to satisfy your Запросs, data can be also disclosed to Adamas S.r.l. Tecnocasa partner employees, additional departments of the company and companies, even foreign companies, belonging to the same group.
Data will be stored within the EU, on a server owned by Adamas S.r.l. Tecnocasa partner or other companies of the Group.
With reference to the above mentioned purposes, Adamas S.r.l. Tecnocasa partner informs that supplying personal information is optional for the activities of the company, while it is compulsory for purposes 1) and 2) and therefore in these last cases the refusal to provide personal information will cause the impossibility to fulfil your Запросs by Adamas S.r.l. Tecnocasa partner
With reference to the above situation 3), Adamas S.r.l. Tecnocasa partner will require from time to time, by means of boxes on the website pages, the authorisation for the use of personal data.
Adamas S.r.l. Tecnocasa partner informs that under article 7 of the Italian Legislative Decree 196/2003, you have special rights for authorising the use of your personal data. In particular you may obtain by the owner or any other data manager the confirmation of the existence of personal data regarding you and that they are available in a comprehensible way. You have also the right to know the contents and origin and purposes of data handling or Запрос that they be integrated, updated or changed; Запрос that the data be deleted, transformed into an anonymous form or that any data treated in breach of the law be blocked; and to oppose in any case, for lawful reasons, their processing.
For any information relevant to this document as well as to exercise the above mentioned rights, please contact the following email address: info@lakegardaproperty.de.
In order to be informed about any change or modification of policies relevant to privacy statement followed by Adamas S.r.l. Tecnocasa partner, mainly due to standard amendments, we kindly ask you to often check this page.
×